
你与好的布局可能就是差了一道门的步骤!门,登堂入室的第一要素,大多数人装修时却常常忽视它的存在,家里仅仅改了一扇门,就能影响整体的幸福感与居住体验,今天福熙防盗门和大家分享下如何测量:

一、了解防盗门
福熙防盗门15年专注中高端双色防盗门和防盗防爆锁的高新技术型妖精视频在线视频,配有防盗锁,在一定时间内可以抵抗一定条件下非正常开启,具有一定安全防护性能并符合相应防盗安全级别的门。

俗话说,内行看门道,外行看热闹。首先一樘防盗门的设计、福熙双色防盗门,正面更漂亮、反面好搭配,质感的好坏最先表现在外观上,外观细节精美、触感舒服的门妖精视频黄色一般不会差;所以说这时候你要是有一手好的量门技巧与方法,今天和福熙防盗门一起来学习学习吧。

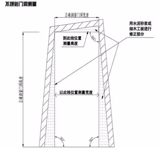
安装门之前的门洞测量工作非常重要!第一手了解客户的门洞现场,判断定门尺寸,为客户推荐可定制的款式,体现专业度和服务高效化尤为重要。

鲁班尺▲ 水平仪▲




注:在测量过程中要注意地面处理情况,要预留出合适的尺寸以备所需。门扇高度、门洞高度差额为5-10mm,门扇厚度标准为38mm和45mm,要和门框互相配合。
